회사소개
- 회사소개
- 사업분야
- R&D센터
- 다쓰소식
- 고객지원
CEO 인사말
- CEO 인사말
- Vision 2030
- CI/BI 소개
- DASS History
- 오시는길

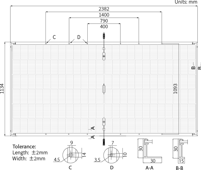
전기적 특성(STC 테스트)
| 모듈 모델명 | LR5-72HGD-570M |
|---|---|
| 최대 파워 (Pmax/W) | 570 |
| 오픈 서킷 전압 (Voc/V) | 51.19 |
| 단락 전류 (Isc/A) | 14.05 |
| 피크 파워 전압 (Vmp/V) | 43.00 |
| 피크 파워 전류 (Imp/A) | 13.26 |
| 배터리 배열: | 144 (6×24) |
| 배선함: | 분리식 배선함, IP68, 다이오드 3EA |
| 모듈 중량: | Ver.1 : 31.8kg Ver.2 : 33.5kg |
| 모듈 사이즈: | Ver.1 : 2278x1134x30mm Ver.2 : 2382x1134x30mm |
| 포장 정보: | 36 pcs/pallet 144 pcs/20’GP 720 pcs/40’HC |


